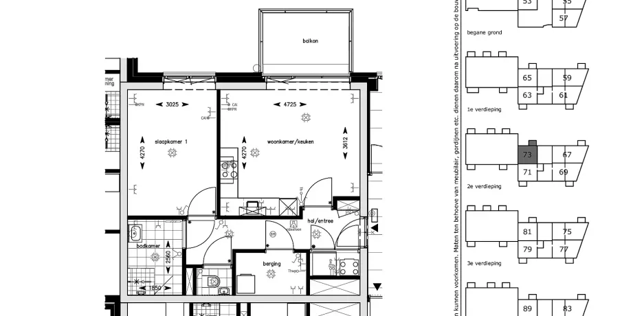
1 kamers appartement van 54 m2

Vluchtladderstraat,
1019 VT Amsterdam

Maandelijkse huur
1.286,-
Aangemaakt / Bijgewerkt
24 dagen geleden
Beschikbaar vanaf
Zo snel mogelijk
Geverifieerde advertentie
Ja

1 kamer appartement in Amsterdam

Schitterend appartement gelegen op het schiereiland Cruquiuswerf in Amsterdam!. Je wordt verwelkomd door een ruime en uitnodigende hal die een gevoel van thuiskomen creëert. De hal leidt naar een lichte en open woonkamer, waar grote ramen voor een overvloed aan natuurlijk licht zorgen. Deze ruimte is perfect voor ontspanning na een drukke dag of voor het ontvangen van gasten in een warme en gastvrije omgeving.. De moderne open keuken is volledig uitgerust en nodigt uit tot culinaire avonturen. Met strakke lijnen en hoogwaardige afwerkingen vormt deze keuken een blikvanger in de ruimte. Of je nu een snelle maaltijd bereidt of een uitgebreid diner, deze keuken biedt alle faciliteiten die je nodig hebt.. De comfortabele en ruime slaapkamer is ontworpen als een oase van rust. Hier kun je ontspannen en tot rust komen in een serene omgeving. De slaapkamer biedt voldoende ruimte voor een groot bed en extra meubilair, waardoor je een persoonlijke en gezellige sfeer kunt creëren.. De smaakvol ingerichte badkamer is voorzien van een moderne wastafel en een verfrissende douche. Deze ruimte is ontworpen met oog voor detail en biedt een ontspannen begin van je dag.. Het appartement beschikt ook over een apart toilet, wat extra gemak biedt voor jou en je gasten. Daarnaast is er een handige berging aanwezig, ideaal voor het opslaan van persoonlijke spullen, huishoudelijke artikelen of seizoensgebonden items.. Cruquiuswerf is een verborgen parel in Amsterdam-Oost, omringd door het Amsterdam-Rijnkanaal en de Nieuwevaart. Het gebied is getransformeerd van een industrieel havengebied tot een geweldige plek om te wonen.. Op loopafstand vind je het bruisende Amsterdam-Oost, met zijn trendy cafés, boetiekjes en markten. De mix van culturele invloeden en de nabijheid van het water maken deze locatie echt uniek.. Interesse?. Ga in de woningpresentatie op onze website naar [REAGEER] en geef hiermee aan dat je geïnteresseerd bent.. Inkomensnormen en inschrijfdocumentatie. Hiervoor verwijzen we je door naar onze website.. Borg. Verhuurder kan om haar moverende redenen borg vragen. Dit kan o.a. afhankelijk zijn van de werksituatie van de kandidaten.. Huurprijswijziging. Voor huurwoningen met een geliberaliseerde huurprijs geldt een jaarlijkse huurverhoging van maximaal CPI +3,00%, tenzij er in enig jaar door de Rijksoverheid een andere maximale huurprijsverhoging voor geliberaliseerde zelfstandige huurwoningen is vastgesteld. In het geval van een gereguleerde huurprijs bepaalt de Rijksoverheid jaarlijks het percentage van de huurverhoging.. **Vb&t streeft ernaar om je zo goed mogelijk aan een passende huurwoning te helpen. Om dit te realiseren verzoeken wij je om jezelf in te schrijven via onze website. Inschrijven is altijd kosteloos en geheel vrijblijvend. Je kunt je inschrijven voor woningen die direct beschikbaar zijn, maar ook voor woningen die mogelijk toekomstig beschikbaar komen. Op basis van de door jou verstrekte informatie word je door ons automatisch per e-mail geïnformeerd wanneer er woningen beschikbaar zijn die voldoen aan je woonwensen. Je kunt gratis en eenvoudig inschrijven op onze website.**. **Deze informatie is met de grootst mogelijke zorg samengesteld. Toch kunnen wij niet altijd voorkomen dat de informatie enigszins afwijkt van hetgeen je in of rond de woning ziet of hebt gezien. Dit kan met name gelden voor de brochure tekst, de plattegronden en maatvoeringen. Hieraan kunnen dan ook geen rechten worden ontleend.**. Verberg volledige omschrijving.... Algemeen: : Servicekosten: : € 91,-: Energielabel: : A++: Aanvaarding: : Per direct: Huurtermijn (min.): : 12 maanden: Aantal reacties: : 200: Overige kosten: : Waarborgsom: : € 0,-: Naamplaatje: : € 40,-: Bouw: : Soort object: : Appartement: Soort bouw: : Bestaande bouw: Bouwjaar: : 2020: Soort dak: : Plat dak: Oppervlakten en inhoud: : Woonoppervlakte: : 54 m²: Inhoud: : 153 m³: Aanvullende informatie: : WOZ waarde: : € 483.000,-: WOZ peildatum: : 2-1-2025: WWS-punten: : 186

+ Lees meer

Woningdetails

Zaaknummer: 9683324
Woningtype
Appartement
Aantal kamers
1
Oppervlakte
54 m²
Huur
1.286,-
Nutsvoorzieningen
91,-
Borg
0,-
Vooruitbetaalde huur
Huurperiode
Over 12 maanden
Beschikbaar vanaf
Zo snel mogelijk
Huisdieren
—
Lift
Nee
Balkon
Nee
Gemeubileerd
Nee
Deelvriendelijk
Nee
Energielabel
A (2020)
Digitale bezichtiging
Nee

De locatie van de woning

Over de verhuurder

Geverifieerd door HuurwoningPortaal

Ja

Geef tip aan een vriend

Als de woning niets voor jou is, is het misschien iets voor iemand die je kent?

Delen via Facebook
Verstuur via Messenger

Werk je profiel bij

Je profiel is een korte beschrijving van jou als woningzoekende. Je profiel is een belangrijk hulpmiddel voor jou als woningzoekende, omdat ingevulde profielen met foto meer opvallen wanneer je contact opneemt met een verhuurder. Je profiel kan alleen worden gezien door jou en de verhuurders waarmee je in contact bent, evenals verhuurders die een actuele en online woning hebben die overeenkomt met jouw zoekcriteria.