1 kamers appartement van 55 m2

Singravenlaan,
6825 Arnhem

Maandelijkse huur
1.328,-
Aangemaakt / Bijgewerkt
2 dagen geleden
Beschikbaar vanaf
Zo snel mogelijk
Geverifieerde advertentie
Ja

1 kamer appartement in Arnhem

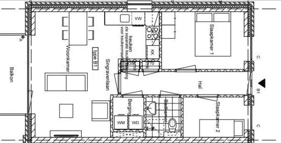
. Omschrijving Singravenlaan in Arnhem. Wonen met New Yorkse flair in hartje Arnhem. Ontdek het moderne stadsleven in het gloednieuwe appartementencomplex aan de Singravenlaan – een unieke plek waar stijl, comfort en duurzaamheid samenkomen.. Het complex bestaat uit drie eigentijdse gebouwen die stuk voor stuk zijn ontworpen met oog voor detail en kwaliteit.. De architectuur ademt een New Yorkse uitstraling: stoere stalen accenten, grote raampartijen en veel natuurlijk licht creëren een industriële, maar warme sfeer. Binnen geniet je van hoogwaardige afwerking, een luxe keuken met topapparatuur en een stijlvolle badkamer. Alles is ontworpen voor een zorgeloos, energiezuinig en comfortabel leven.. De ligging aan de Singravenlaan is ideaal – rustig én centraal. Je bevindt je vlak bij het levendige centrum van Arnhem én Velp, met winkels, scholen, restaurants en een groot multifunctioneel park binnen handbereik. De uitstekende uitvalswegen en OV-verbindingen zorgen ervoor dat je moeiteloos reist naar Nijmegen, Apeldoorn, Zutphen, Utrecht en de rest van de regio.. Dit is wonen op z’n best: modern, duurzaam en met een vleugje wereldse allure.. Laat deze kans niet aan je voorbijgaan – beleef het wonen met karakter aan de Singravenlaan!. Bijzonderheden:. - Zo goed als nieuwe keukens voorzien van alle nodige apparatuur. - Twee slaapkamers. - Aan de achterkant van dit blok waar de woonkamer en het balkon zich bevinden komt ’s morgens heerlijk de zon op (ligging zuid-oost). - Inclusief eigen parkeerplaats en berging. - Huisdieren niet toegestaan. - Binnen roken niet toegestaan. - Minimaal 24 maanden. - Beschikbaar 1 Maart 2026. - Inkomenseis van toepassing (3x kale huur). Kosten:. Kale huur € 1087,90. Servicekosten € 75,-. Afschrijving € 60,-. Parkeerplaats € 105,- - +. Totale huurprijs € 1.327,90. Borg € 2.655,80. Lees meer.

+ Lees meer

Woningdetails

Zaaknummer: 8568568
Woningtype
Appartement
Aantal kamers
1
Oppervlakte
55 m²
Huur
1.328,-
Nutsvoorzieningen
75,-
Borg
2.655,-
Vooruitbetaalde huur
Huurperiode
Over 12 maanden
Beschikbaar vanaf
Zo snel mogelijk
Huisdieren
—
Lift
Nee
Balkon
Ja
Gemeubileerd
Nee
Deelvriendelijk
Nee
Energielabel
A (2020)
Digitale bezichtiging
Nee

Locatie van de woning

Over de verhuurder

Geverifieerd door HuurwoningPortaal

Ja

Tip een vriend

Als de woning niets voor jou is, is het misschien iets voor iemand die je kent?

Delen via Facebook
Verstuur via Messenger

Werk uw profiel bij

Je profiel is een korte beschrijving van jou als woningzoekende. Je profiel is een belangrijk hulpmiddel voor jou als woningzoekende, omdat ingevulde profielen met foto meer opvallen wanneer je contact opneemt met een verhuurder. Je profiel kan alleen worden gezien door jou en de verhuurders waarmee je in contact bent, evenals verhuurders die een actuele en online woning hebben die overeenkomt met jouw zoekcriteria.