2 kamers appartement van 83 m2

Oostenburgermiddenstraat,
1018 LH Amsterdam

Maandelijkse huur
2.035,-
Aangemaakt / Bijgewerkt
8 dagen geleden
Beschikbaar vanaf
28. feb 2026
Geverifieerde advertentie
Ja

2 kamer appartement in Amsterdam

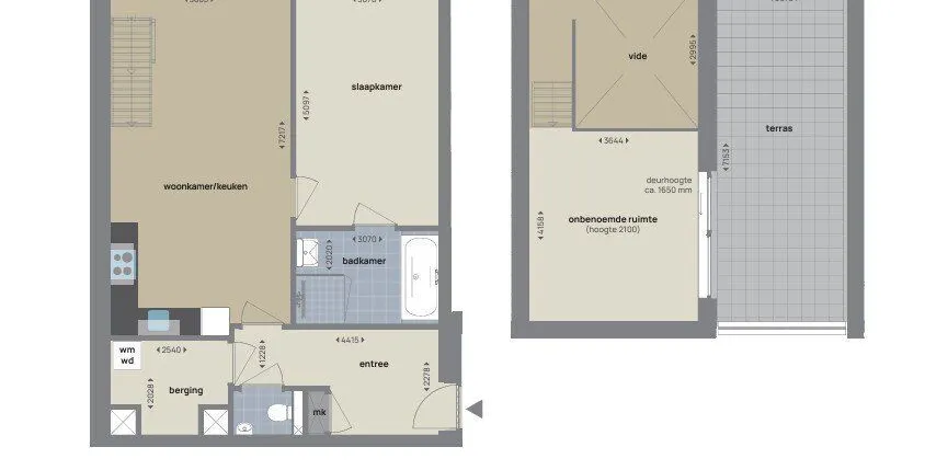
Beschikbaar per 01 maart 2026 : 2/3-kamer appartement aan de Oostenburgermiddenstraat 261 Hip wonen in Amsterdam. Dat kan goed in deze buurt. De buurt heeft naar verhouding veel jonge inwoners van tussen de 25 en 44 jaar. Verder is het een betrekkelijk rustige buurt gekeken naar de bevolkingsdichtheid.. *Let op!! De foto’s zijn modelfoto's van een vergelijkbare woning en geven enkel een beeld van de indeling van de woning.. Kenmerken: Type: 2/3-kamer appartement. Oppervlakte: ca. 83 m2. Verdieping: Gelegen op de 3e verdieping. Aantal kamers: 3 kamers waarvan 1 slaapkamer, onbenoemde ruimte kan gebruikt worden als 2e slaapkamer.. Berging aanwezig voor o.a. wasmachine en droger. Bouwjaar: 2018. Buitenruimte: Balkon en Dakterras. Ligging buitenruimte: Noordwesten. Huurprijs: € 2.035,00 per maand. Servicekosten: € 85,00 per maand. Beschikbaar : 01 maart 2026. Indeling: Woonkamer met open keuken, toegang tot balkon en trap naar vide • Luxe keuken in hoekopstelling voorzien van zwart composiet aanrechtblad en inbouwapparatuur: koelkast met vriesvak, combimagnetron, inductiekookplaat, wandschouwkap en vaatwasser • Een slaapkamer met toegang tot badkamer, badkamer voorzien van douche met glazen douchedeur, ligbad en wastafel, toilet apart • Berging voorzien van opstelplaats voor wasmachine, droger, WPU en WTW • Extra ruimte (te gebruiken als extra slaapkamer op 8e verdieping met toegang tot dakterras. Balkon op het noordwesten. **Buiten de genoemde kosten voor de basishuur en de voorschot servicekosten is huurder verplicht om een leveringsovereenkomst te sluiten met NEXTNRG voor de huur van de warmtepomp. Deze kosten bedragen ca. €99,- Samenvattend: Na een overeenstemming zullen er 2 overeenkomsten worden getekend 1. Huurovereenkomst van de woonruimte 2. Leveringsovereenkomst met NEXTNRG Omgeving. De woning is goed bereikbaar met veel voorzieningen in de buurt. Gesitueerd op fietsafstand van het centrum van Amsterdam, loopafstand van een supermarkt. Daarnaast is de dichtstbijzijnde uitvalsweg in de nabije omgeving op slechts 3 minuten rijden.. Interesse U heeft interesse in de woning en u zou de woning graag willen bezichtigen? Dat is mogelijk na uw inschrijving bij ā€˜REBO Huurwoning’ als woningzoekende.. - Inschrijven als woningzoekende kan via onze website. Ga naar de woningadvertentie en klik op de button ā€˜Inschrijven’ waarna u een persoonlijk account aanmaakt. Wij hanteren inkomensvoorwaarden van 3,5x de kale huur per maand. Wij zullen daarom diverse officiĆ«le en actuele documenten van u vragen. Let er op dat u aanlevert wat gevraagd wordt, dat voorkomt teleurstelling achteraf.. - De woning wordt toegewezen aan de meest passende kandidaat. Dat is in ieder geval een kandidaat die de volledige inschrijvingsprocedure heeft doorlopen. - Bent u na inschrijving geselecteerd om de woning te bezichtigen? Dan ontvangt u automatisch bericht en kunt u de woning bezichtigen. Wij reserveren de woning voor u nadat de bezichtigingsafspraak gepland staat.. - Wilt u weten hoe u uw kansen kan vergroten? Of heeft u aanvullende vragen over de inschrijvingsprocedure? Lees dan de FAQ’s aandachtig door. Mogelijk staat uw vraag hier tussen. En verder. - De huurovereenkomst wordt aangegaan voor de duur van 12 maanden, daarna wordt deze stilzwijgend verlengd voor onbepaalde tijd.. - Bent u ondernemer? Dan stellen wij naast de inkomensvoorwaarden de afgifte van een waarborgsom t.h.v. 2 maanden huur als voorwaarde.

+ Lees meer

Woningdetails

Zaaknummer: 9754203
Woningtype
Appartement
Aantal kamers
2
Oppervlakte
83 m²
Huur
2.035,-
Nutsvoorzieningen
85,-
Borg
4.070,-
Vooruitbetaalde huur
Huurperiode
Onbepaalde tijd
Beschikbaar vanaf
28. feb 2026
Huisdieren
—
Lift
Nee
Balkon
Nee
Gemeubileerd
Nee
Deelvriendelijk
Nee
Energielabel
Digitale bezichtiging
Nee

De locatie van de woning

Over de verhuurder

Geverifieerd door HuurwoningPortaal

Ja

Geef tip aan een vriend

Als de woning niets voor jou is, is het misschien iets voor iemand die je kent?

Delen via Facebook
Verstuur via Messenger

Werk je profiel bij

Je profiel is een korte beschrijving van jou als woningzoekende. Je profiel is een belangrijk hulpmiddel voor jou als woningzoekende, omdat ingevulde profielen met foto meer opvallen wanneer je contact opneemt met een verhuurder. Je profiel kan alleen worden gezien door jou en de verhuurders waarmee je in contact bent, evenals verhuurders die een actuele en online woning hebben die overeenkomt met jouw zoekcriteria.