3 kamers appartement van 134 m2

Wichersstraat,
1051 ML Amsterdam

Maandelijkse huur
2.526,-
Aangemaakt / Bijgewerkt
10 dagen geleden
Beschikbaar vanaf
1. mrt 2026
Geverifieerde advertentie
Ja

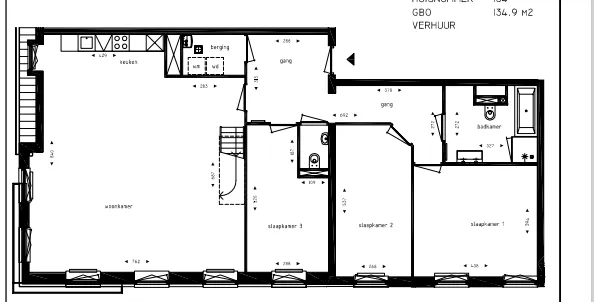
3 kamer appartement in Amsterdam

Aan de Wichersstraat 134 bieden wij dit royale appartement van 134 m² te huur aan. De woning beschikt over drie ruime slaapkamers en is gelegen op de 4e verdieping. Dankzij de praktische indeling en het lichte karakter is dit een zeer comfortabele woonruimte.. Het appartement is voorzien van een dakterras, ideaal om in alle rust van de buitenlucht te genieten.. De maandelijkse huurprijs bedraagt € 2.715,- exclusief € 60,- servicekosten.. Omgeving. De woning bevindt zich in een prettige en gewilde woonomgeving. In de directe nabijheid vind je diverse winkels, supermarkten, scholen en sportfaciliteiten. Ook zijn er goede verbindingen met het openbaar vervoer en liggen belangrijke uitvalswegen op korte afstand. De buurt is rustig, groen en biedt alle dagelijkse voorzieningen binnen handbereik.. Incl. Parkeerplaats. Energielabel. De woning beschikt over energielabel A, wat zorgt voor een energiezuinig en comfortabel woonklimaat.. Beschikbaarheid. De woning is beschikbaar per 01-03.. Interesse?. Ben je geïnteresseerd in deze woning, dan kan er eenvoudig een bezichtigingsaanvraag worden ingediend via onze website.. Graag wijzen wij u erop dat de informatie en afbeeldingen op de website ter indicatie zijn en dat hieraan geen rechten kunnen worden ontleend.. Gebruik van deze site is onderworpen aan de voorwaarden en beperkingen zoals genoemd in de. disclaimer. .

+ Lees meer

Woningdetails

Zaaknummer: 9744893
Woningtype
Appartement
Aantal kamers
3
Oppervlakte
134 m²
Huur
2.526,-
Nutsvoorzieningen
60,-
Borg
2.526,-
Vooruitbetaalde huur
Huurperiode
Beschikbaar vanaf
1. mrt 2026
Huisdieren
Lift
Nee
Balkon
Ja
Gemeubileerd
Nee
Deelvriendelijk
Nee
Energielabel
A (2015)
Digitale bezichtiging
Nee

De locatie van de woning

Over de verhuurder

Geverifieerd door HuurwoningPortaal

Ja

Geef tip aan een vriend

Als de woning niets voor jou is, is het misschien iets voor iemand die je kent?

Delen via Facebook
Verstuur via Messenger

Werk je profiel bij

Je profiel is een korte beschrijving van jou als woningzoekende. Je profiel is een belangrijk hulpmiddel voor jou als woningzoekende, omdat ingevulde profielen met foto meer opvallen wanneer je contact opneemt met een verhuurder. Je profiel kan alleen worden gezien door jou en de verhuurders waarmee je in contact bent, evenals verhuurders die een actuele en online woning hebben die overeenkomt met jouw zoekcriteria.