3 kamers appartement van 97 m2

Tornemeer,
3446 JL Woerden

Maandelijkse huur
2.030,-
Aangemaakt / Bijgewerkt
7 dagen geleden
Beschikbaar vanaf
Zo snel mogelijk
Geverifieerde advertentie
Ja

3 kamer appartement in Woerden

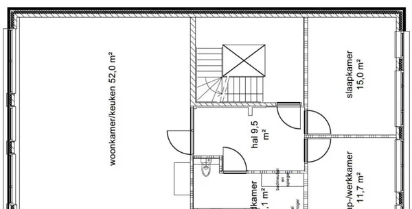
. Beschrijving. TE HUUR – Woerden (Waterrijk) | 3-kamer appartement (ca. 97 m²) + dakterras (ca. 103 m²) + overdekte parkeerplaats | per 1 maart 2026In de geliefde wijk Waterrijk ligt dit moderne, goed geïsoleerde gestoffeerde appartement op de derde verdieping (bouwjaar 2011) met 2 slaapkamers, vloerverwarming en een uitzonderlijk groot dakterras met prachtig uitzicht over water en groen.Pluspunten** Energiel....

+ Lees meer

Woningdetails

Zaaknummer: 9091114
Woningtype
Appartement
Aantal kamers
3
Oppervlakte
97 m²
Huur
2.030,-
Nutsvoorzieningen
Borg
Vooruitbetaalde huur
Huurperiode
Beschikbaar vanaf
Zo snel mogelijk
Huisdieren
Lift
Ja
Balkon
Ja
Gemeubileerd
Nee
Deelvriendelijk
Nee
Energielabel
Digitale bezichtiging
Nee

Locatie van de woning

Over de verhuurder

Geverifieerd door HuurwoningPortaal

Ja

Tip een vriend

Als de woning niets voor jou is, is het misschien iets voor iemand die je kent?

Delen via Facebook
Verstuur via Messenger

Werk uw profiel bij

Je profiel is een korte beschrijving van jou als woningzoekende. Je profiel is een belangrijk hulpmiddel voor jou als woningzoekende, omdat ingevulde profielen met foto meer opvallen wanneer je contact opneemt met een verhuurder. Je profiel kan alleen worden gezien door jou en de verhuurders waarmee je in contact bent, evenals verhuurders die een actuele en online woning hebben die overeenkomt met jouw zoekcriteria.