6 kamers appartement van 197 m2

Rusthoflaan,
3034 XP Rotterdam

Maandelijkse huur
1.800,-
Aangemaakt / Bijgewerkt
Vandaag
Beschikbaar vanaf
Geverifieerde advertentie
Ja

6 kamer appartement in Rotterdam

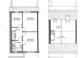
. Beschrijving. Geweldige 5-kamer bovenwoning gelegen op een steenworp afstand van het Kralingse Bos in het hippe Nieuw Crooswijk!. Exclusieve boetiekjes en lifestyle winkels in de Pannekoekstraat. Chique modezaken en trendy restaurants aan de Meent. Culinaire verrassingen en architectonische hoogstandjes in de Markthal. Al deze, en nog veel meer Rotterdamse hotspots liggen op slechts 10 minuten fietsen van Nieuw Crooswijk.. Indeling:. - Woonkamer: ca. 42 m². - Keuken: ca.17 m². - 4 slaapkamers: ca 18 m², 19 m², 21m² en 17 m². - Badkamer met ligbad, douche, wastafel en 2e toilet. Bijzonderheden:. - De huurprijs is zonder servicekosten.. Deze kosten bedragen ongeveer € 10,80 per maand, zijn indicatief en kunnen afwijken.. - De woning is voorzien van een laminaatvloer. - Het is mogelijk om een parkeervergunning op straat aan te vragen.. Huurvoorwaarden:. - De inkomenseisen voor een huishouden bestaande uit één persoon zijn:. een geregistreerd jaarinkomen 2024 bij de Belastingdienst of laatste 12 maanden. geregistreerd door het UWV van minimaal € 90.000. - De inkomenseisen voor een huishouden bestaande uit twee personen of meer zijn:. een geregistreerd jaarinkomen 2024 bij de Belastingdienst of laatste 12 maanden. geregistreerd door het UWV van minimaal € 115.000.. - Je kunt deze woning niet huren met een garantsteller.. - De woning is niet bedoeld voor studenten.. - Huurders die zelfstandig een sociale huurwoning van Woonstad Rotterdam of. een woning van Stadswonen Rotterdam huren en hun huidige huurovereenkomst opzeggen,. krijgen voorrang.. Disclaimer. We stellen onze advertenties met zorg op. Het kan zijn dat een advertentie toch niet volledig is of een fout bevat. De advertenties zijn daarom onder voorbehoud van type- en spelfouten..

+ Lees meer

Woningdetails

Zaaknummer: 9226146
Woningtype
Appartement
Aantal kamers
6
Oppervlakte
197 m²
Huur
1.800,-
Nutsvoorzieningen
11,-
Borg
Vooruitbetaalde huur
Huurperiode
Beschikbaar vanaf
Huisdieren
Lift
Nee
Balkon
Nee
Gemeubileerd
Nee
Deelvriendelijk
Nee
Energielabel
Digitale bezichtiging
Nee

Locatie van de woning

Over de verhuurder

Geverifieerd door HuurwoningPortaal

Ja

Tip een vriend

Als de woning niets voor jou is, is het misschien iets voor iemand die je kent?

Delen via Facebook
Verstuur via Messenger

Werk uw profiel bij

Je profiel is een korte beschrijving van jou als woningzoekende. Je profiel is een belangrijk hulpmiddel voor jou als woningzoekende, omdat ingevulde profielen met foto meer opvallen wanneer je contact opneemt met een verhuurder. Je profiel kan alleen worden gezien door jou en de verhuurders waarmee je in contact bent, evenals verhuurders die een actuele en online woning hebben die overeenkomt met jouw zoekcriteria.